TRAM House: Bản giao hưởng của ánh sáng và gió | HO Studio
Giữa nhịp phát triển hối hả của thành phố Vinh, nơi những tòa nhà cao tầng ngày một nhiều hơn, Tram House xuất hiện như một khoảng lặng. Nằm trong phạm vi mở rộng đường theo quy hoạch mới tại thành phố Vinh, khu đất của khách hàng vừa cắt giảm diện tích, vừa tạo ra một đường chéo 40 độ với vỉa hè mới-đang được lên kế hoạch thực hiện trong vài năm tới. Khi khảo sát khu đất vào năm 2023, lúc này đang là ngôi nhà một tầng khá khép kín, được sử dụng hơn hai mươi năm và có phần nền rất thấp. Lúc cùng khách hàng đứng trên mái ngôi nhà cũ chúng tôi ngay lập tức cảm nhận được nơi này rất mát bởi lượng gió dồi dào thổi qua, cảnh quan xung quanh rất thoáng và tồn tại khoảng trống đô thị ở ba mặt. Với chúng tôi, rõ ràng là vị trí này có tiềm năng lớn cho một ngôi nhà có tầm nhìn rộng mở, đồng thời tối đa hóa luồng không khí di chuyển qua toàn bộ không gian bên trong.

Đặt gần với hai toà chung cư 15 và 23 tầng, ngôi nhà được nhận biết như một khối tháp đặc với một màu trắng đồng nhất. Các đường chéo, vát cắt được sử dụng để tạo các đặc điểm riêng biệt trong thiết kế ngoại thất công trình.
Khi gió được biểu hiện qua ngôn ngữ của kiến trúc
Tram House nằm trong khu vực mở rộng của một tuyến đường mới tại thành phố Vinh, nơi những mảng quy hoạch đang dần định hình và những khối cao tầng bắt đầu vươn lên. Giữa hai tòa chung cư cao 15 và 23 tầng, một ngôi nhà trắng nổi lên như một “tháp gió” nhỏ bé nhưng đầy sức sống.
Trước khi xây dựng, mảnh đất ấy chỉ là ngôi nhà một tầng thấp và khép kín, đã hơn hai mươi năm tuổi. Khi nhóm thiết kế HO Studio cùng gia chủ đứng trên mái nhà cũ, họ nhận ra một điều kỳ diệu “Gió ở đây thổi không ngừng.” Không chỉ là sự mát mẻ, mà còn là nhịp thở của đô thị thứ năng lượng mà kiến trúc có thể nắm bắt và chuyển hóa.

Hình khối của sự kết nối
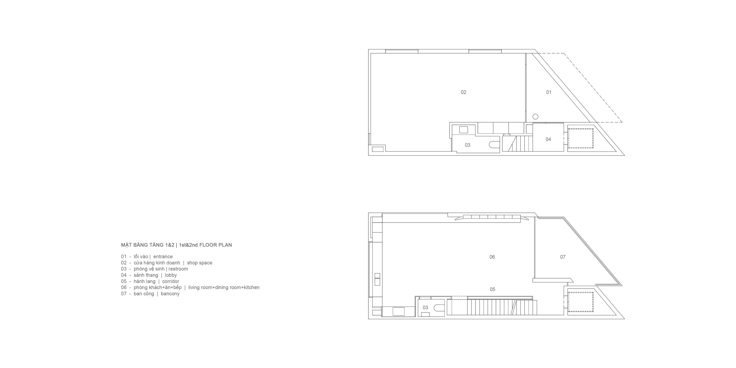
Ngôi nhà được định hình như một khối tháp trắng đặc, nghiêng nhẹ 40 độ theo đường vỉa hè mới một góc cắt vừa tạo sự nhận diện riêng, vừa phản ánh cách kiến trúc phản hồi với đô thị.
Phần “khối đặc” ở phía Tây nơi tập trung thang máy, thang bộ, hành lang và khu vệ sinh đóng vai trò như một bức chắn nắng tự nhiên, giảm thiểu bức xạ và bảo vệ phần không gian mở phía Đông – Nam. Chính sự đối lập này giúp ngôi nhà vừa vững chãi vừa thông thoáng, một kiểu cân bằng ít thấy ở các công trình nhà phố miền Trung.

Các khoảng thông tầng, giếng trời và mảng kính lớn được tính toán để tạo nên luồng gió liên tục xuyên suốt từ mặt trước đến mặt sau. Nhờ đó, mọi căn phòng đều kết nối với ánh sáng và không khí, thay vì bị giới hạn trong các khối tường kín — một lựa chọn cho phép con người “hiện diện” cùng nhau dù ở những tầng khác nhau.
Không gian và sự kết nối
Điểm đáng chú ý của Tram House không nằm ở quy mô 420m², mà ở cách không gian đối thoại với nhau.
Tầng hai không gian sinh hoạt chính của gia đình – được mở ra trọn vẹn về hai phía, hướng tầm nhìn ra tán cây xanh mát phía trước và sân sau. Tại đây, một khoảng thông tầng cao hơn 5 mét mở ra bầu trời không bị che chắn – nơi ánh sáng thay đổi theo từng giờ, gió len qua từng khung cửa và thời gian như chậm lại.
Với HO Studio, đó không chỉ là thiết kế, mà là sự hiện diện của con người trong dòng chảy tự nhiên nơi các thành viên có thể nhìn thấy, nghe thấy và cảm nhận nhau qua không gian.

Cây xanh, ánh sáng và “vật chất của cảm xúc”
Ba ban công giật cấp phía trước nhà được phủ kín cây xanh, như những vườn treo nhỏ neo vào khối tháp đặc. Chúng không chỉ là giải pháp thẩm mỹ, mà còn đóng vai trò điều hòa vi khí hậu và mang lại lớp “chuyển tiếp mềm” giữa kiến trúc và đường phố.
Vật liệu được chọn lọc kỹ: khung nhôm kính Tostem, bề mặt trắng tinh giản – vừa phù hợp khí hậu miền Trung, vừa hướng đến triết lý “kiến trúc tối giản để con người tập trung vào những yếu tố phi vật chất”: ánh sáng, gió, hơi thở, và cảm xúc.

City : Vinh
Country : Vietnam
Architects : HO Studio
Lead architects : Hồ Văn Cường
Design team : Hoàng Vân, Nguyễn Anh Nhật
Area : 420m2
Year : 2023
Photographs : Nguyễn Thái Thạch
