AfA Office: Khi văn phòng không chỉ để làm việc, mà còn để con người thấy được sự kết nối
Giữa trung tâm Hà Nội nơi những khối bê tông mọc lên dày đặc như biểu tượng cho tốc độ phát triển của một quốc gia, Môi trường làm việc ngày càng được đẩy lên cao, mỗi ngày có hàng nghìn công ty và hàng triệu người lao động trí óc trong không gian hạn chế, thiếu cây xanh và ánh sáng, văn phòng AfA Design chọn cho mình giải pháp tạo ra sự cân bằng và giàu tính kết nối đầy khác biệt. Dự án Afa Office nằm trên tầng 20 của một tòa nhà văn phòng, không chỉ là nơi làm việc của các kiến trúc sư, mà còn là dấu ấn mới về chữa lành những căng thẳng đô thị.

Từ áp lực đô thị đến giấc mơ về một không gian cân bằng
Hà Nội thành phố đang đô thị hóa với tốc độ chóng mặt, nơi hàng nghìn công ty chen chúc trong những khối nhà cao tầng thiếu cây xanh và ánh sáng. Giữa bối cảnh đó, Afa Office chỉ vỏn vẹn 80m² lại mang khát vọng trở thành không gian làm việc cân bằng, nơi con người có thể kết nối với nhau và với chính mình.
Trước khi cải tạo, văn phòng bị chia nhỏ bởi những vách ngăn cứng, thiếu pantry, thiếu phòng họp, thiếu cả góc thư giãn. Ánh sáng tự nhiên chỉ lọt vào một phần nhỏ, trong khi nắng Tây Bắc khiến khu vực cửa sổ bị “bỏ quên”. Chính những giới hạn đó đã trở thành chất liệu khởi đầu cho hành trình tái tạo không gian nơi kiến trúc trở thành lời giải đáp cho áp lực của đời sống đô thị.

Nơi con người được “thấy” nhau
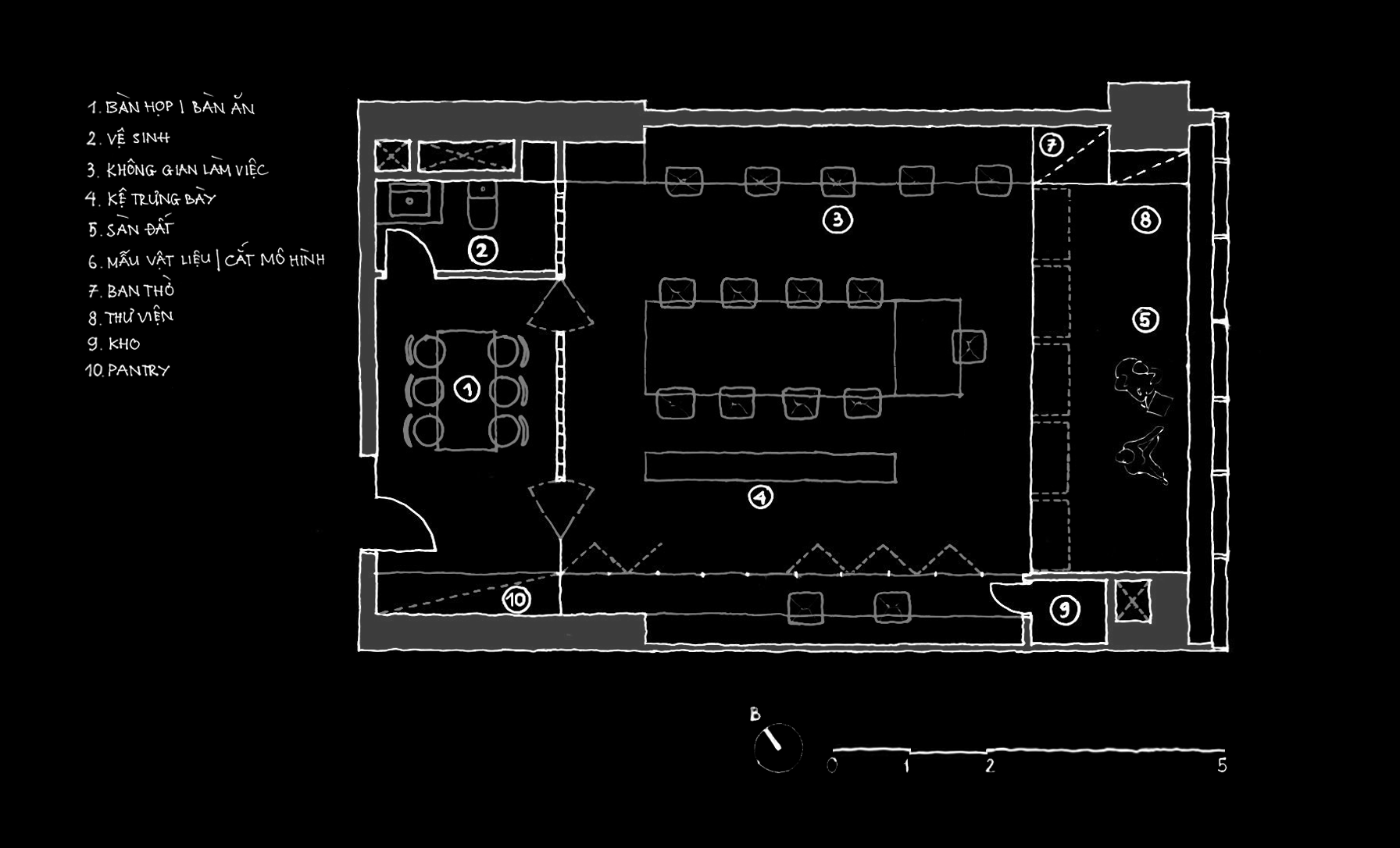
Phân khu chức năng: Trên diện tích 80–81m², AfA Office được chia thành ba khu vực chính: pantry/họp – không gian làm việc – không gian thư giãn. AfA Office gần như xóa bỏ hoàn toàn các vách ngăn. Thay vì những ranh giới cứng nhắc, các kiến trúc sư sử dụng vách mềm, cửa trượt và gạch kính, để ánh sáng tự nhiên len lỏi qua từng lớp không gian.
Nhờ đó, các khu vực pantry, họp, làm việc và thư giãn không còn bị chia tách mà trở thành một dòng chảy liên tục nơi mỗi người có thể cảm nhận sự hiện diện của nhau dù đang ở bất cứ vị trí nào.
Chuyển tiếp không gian: Thay vì tường ngăn, các kiến trúc sư sử dụng độ cao trần (cote trần) và chuyển đổi vật liệu để định nghĩa ranh giới. Người dùng nhận biết sự thay đổi công năng thông qua cảm nhận không cần đến giới hạn vật lý. Đây là một thủ pháp tinh tế, giúp tối ưu hóa không gian nhỏ mà vẫn duy trì cảm giác thoáng đãng và tràn năng lượng.

Văn phòng xanh
Hệ mái dốc veranda lấy cảm hứng từ hàng hiên nhà truyền thống Việt, khu vực tiếp giáp bên ngoài được thiết kế với mái dốc và cao độ nền bằng đất sét, tạo nên một không gian xanh ở tầng 20. Khu vườn này không chỉ đóng vai trò làm mát tự nhiên, giảm bức xạ nắng Tây Bắc hướng sáng duy nhất của văn phòng mà còn trở thành không gian thư giãn và kết nối tinh thần cho nhân viên. Không gian này không chỉ là thiết kế, mà còn là một khoảng đệm cảm xúc, ngăn cách giữa nhịp sống thành thị và thế giới nội tâm của con người.
Phía trước view thành phố, AfA Design bố trí một khu vườn xanh nhỏ, nâng cote cao độ bằng đất sét, tạo cảm giác như đang ngồi bên thềm đất cũ. Ở đó, người ta có thể ngắm nhìn phố xá, thả lỏng sau những giờ làm việc, và hít một hơi thở của thiên nhiên dù chỉ là một tầng giữa mây và bê tông.

Ánh sáng, năng lượng và tính bền vững tinh thần
Cách AfA sử dụng gạch kính, vật liệu phản sáng và bố trí không gian thông suốt giúp giảm đáng kể nhu cầu sử dụng điện năng. Nhưng giá trị thật sự của thiết kế này không chỉ nằm ở con số năng lượng tiết kiệm, mà ở năng lượng con người được hồi phục.
Văn phòng không chỉ sáng hơn, mà còn “sống” hơn, nơi các kiến trúc sư có thể tìm lại nhịp thở, cảm hứng và sự kết nối với nhau.Gạch kính là vật liệu chủ đạo giúp chuyển tiếp ánh sáng mềm mại qua các lớp không gian, gạch kính giúp giảm phụ thuộc vào đèn nhân tạo, đồng thời duy trì tầm nhìn và kết nối giữa các khu vực.

Ký ức làng nghề và ngôn ngữ của thời đại
AfA lựa chọn cói ép, tre đan, giấy dó, gạch gốm những vật liệu đến từ làng nghề quanh Hà Nội, nơi đang dần bị đô thị hóa xóa nhòa. Việc sử dụng các chất liệu này không chỉ nhằm thẩm mỹ, mà còn là hành động bảo tồn ký ức văn hóa tái hiện hơi thở của làng quê Việt trong một văn phòng giữa tầng mây.
Gạch gốm và tre đan mang lại cảm giác ấm cúng, đồng thời có khả năng cách nhiệt tự nhiên, phù hợp với khí hậu Việt Nam. Trong khi đó, giấy dó và cói ép làm mềm không gian, gợi lên sự thân thuộc và thủ công yếu tố hiếm thấy trong kiến trúc văn phòng hiện nay.
Chính sự đan xen giữa truyền thống và hiện đại đã tạo nên sức sống cho AfA Office.
Vật liệu dân gian mang đến cảm giác gần gũi và sâu lắng, trong khi vật liệu hiện đại giúp kiến trúc vận hành hiệu quả và linh hoạt.

Ở đó, mỗi lớp vật liệu là một lớp thời gian, và mỗi chi tiết là một lời đối thoại giữa quá khứ và tương lai, giữa con người và đô thị.
Lời Kết
Kiến trúc không chỉ giải quyết bài toán cho không gian làm việc đương đại mà còn góp phần khuyến khích, cổ vũ, bảo tồn bản sắc dân tộc. Vấn đề của các văn phòng hiện đại không chỉ nằm ở mật độ hay hiệu suất, mà ở sự mất cân bằng giữa sức khỏe tinh thần và không gian vật lý. AfA Office được xem như một nỗ lực tái lập lại mối quan hệ này. Dự án không chỉ đưa thiên nhiên và vật liệu bản địa trở lại, mà còn tái khẳng định vai trò của kiến trúc như một công cụ nuôi dưỡng sức khỏe tinh thần.
Trong khi nhiều công trình chạy theo công nghệ và hình thức, AfA chọn quay về với những giá trị căn bản: ánh sáng, gió, hơi thở, và con người.Chính trong sự giản dị đó, dự án khơi gợi lại niềm tin rằng kiến trúc có khả năng chữa lành, kết nối và bảo tồn tinh thần văn hóa Việt trong thời đại đô thị hóa.

AfA Office như một minh chứng cho lời của Juhani Pallasmaa: “Architecture frees us from the constraints of the present and allows us to experience the slow, healing flow of time.”
“Kiến trúc giải phóng chúng ta khỏi sự trói buộc của hiện tại và cho phép ta trải nghiệm dòng chảy êm đềm, hàn gắn của thời gian.”
— Juhani Pallasmaa, The Eyes of the Skin: Architecture and the Senses, 2022
